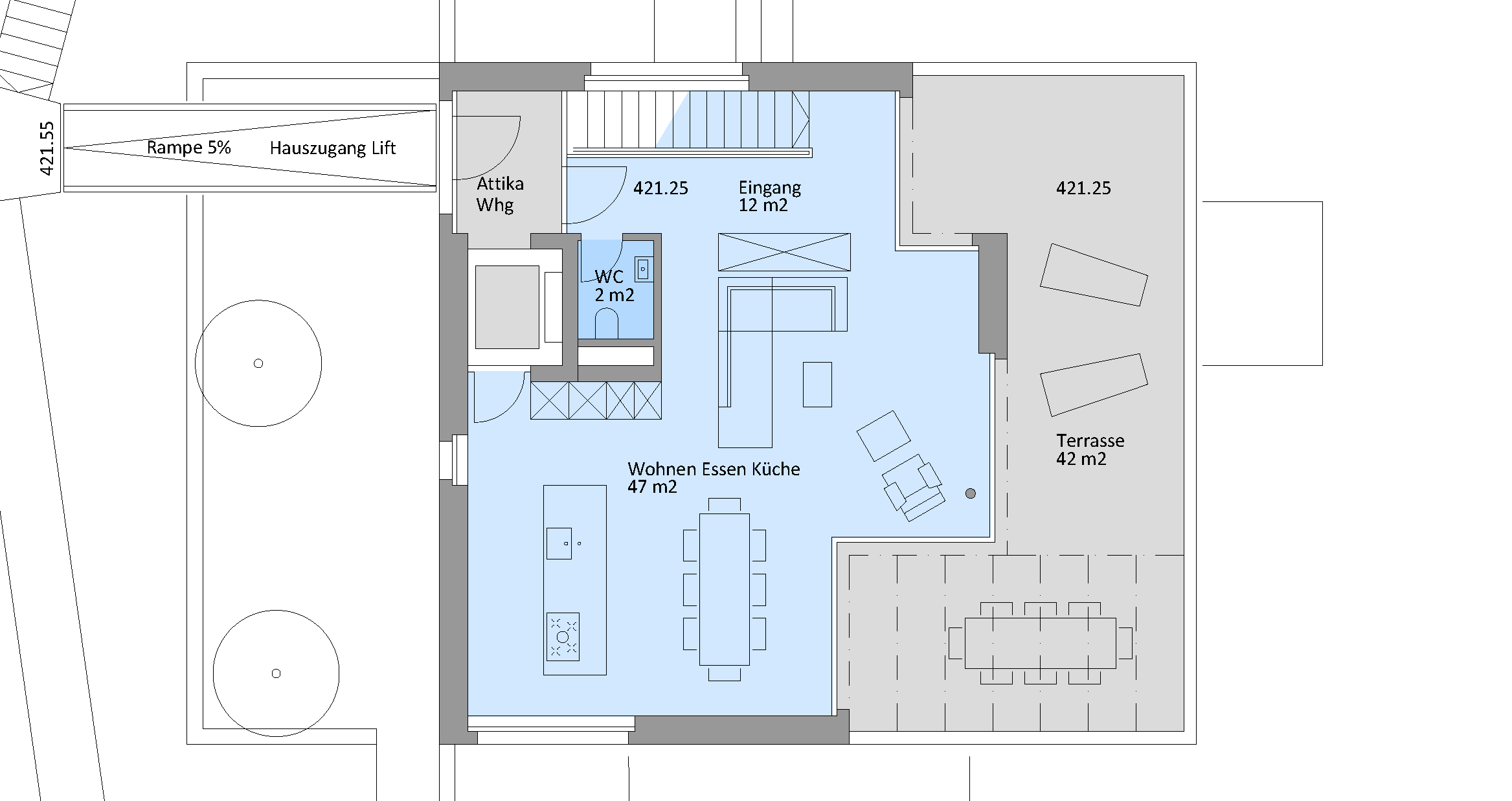
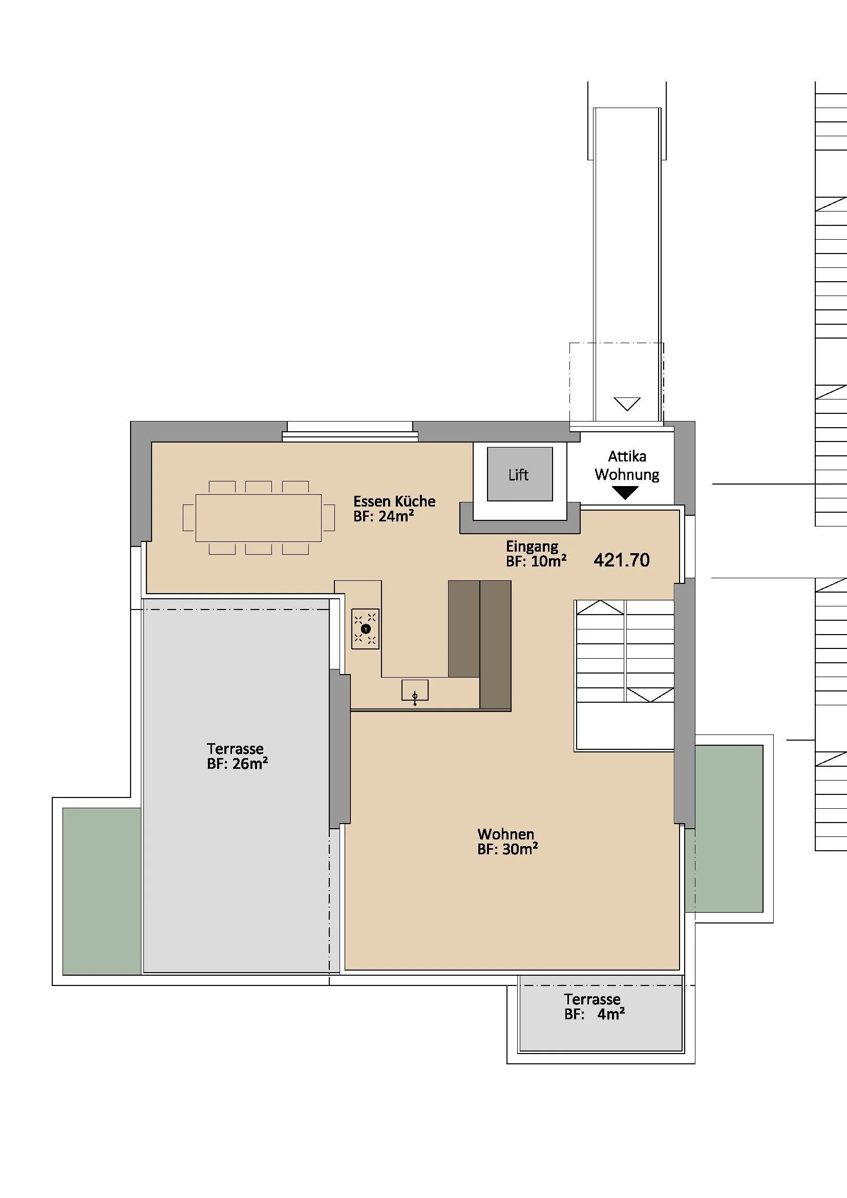
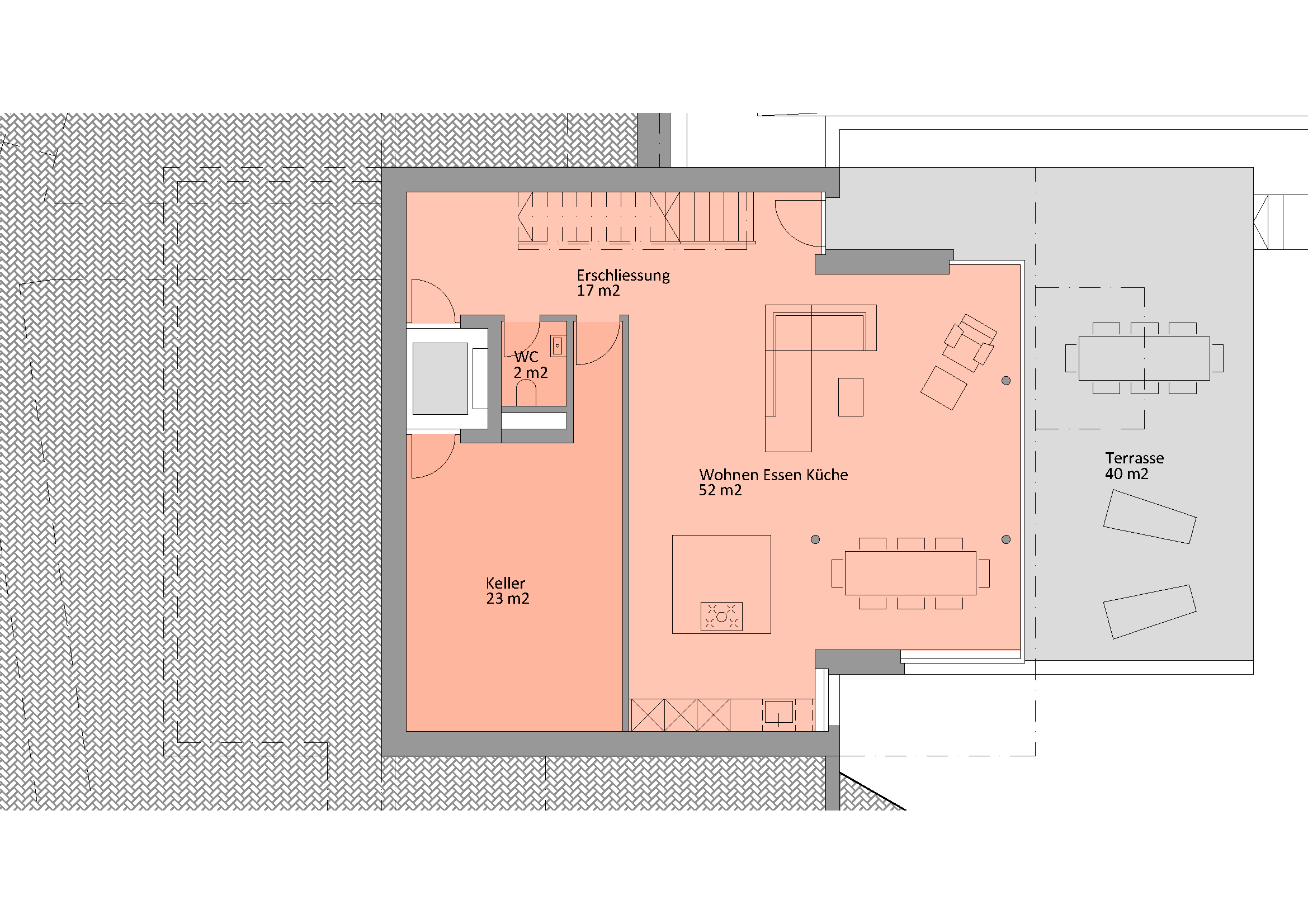
Ersatzneubau. Zweifamilienhaus als Holzbau mit neuentwickelter Solarfassade. Projektnummer: 22.09 Ort: Zürich Jahr: 2022 – 2024 Projekttyp: Neubau View fullsize View fullsize View fullsize View fullsize View fullsize View fullsize